上用賀戸建 3LDK 用賀駅/徒歩14分 駐車場付き 用賀の3LDK賃貸一戸建て!|カリコダテ(株式会社イデアルコンサルティング)

03-5778-2611

営業時間:9:00〜18:00
定休日:土・日・祝

東京都内の賃貸一戸建てはカリコダテ|TOP
賃貸戸建て検索
世田谷区の賃貸戸建て一覧
上用賀戸建 3LDK 用賀駅/徒歩14分 駐車場付き 用賀の3LDK賃貸一戸建て

NEW 上用賀戸建 3LDK 用賀駅/徒歩14分 駐車場付き 用賀の3LDK賃貸一戸建て 

  • 42万円 / 管理費: 無 / 共益費: -
  • 間取り: 3LDK / 専有面積: 112.66m2
  • 敷金: 84万円 / 礼金: 42万円 / 保証金: - / 敷引・償却: --
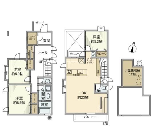
【建物外観】  【間取】 
【建物外観】 
【間取】 
  • 【建物外観】 
  • 【間取】 

【スタッフからのイチオシポイント】上用賀戸建 3LDK 用賀駅/徒歩14分 駐車場付き

東京都世田谷区上用賀4【東急田園都市線 用賀駅徒歩14分】にある3LDK賃貸一戸建てです。
2010年2月築の3LDKの戸建て賃貸です。
物件の広さは112.66m2で人気の3LDKです。
※お部屋のもっと詳しい内容や入居時期、諸条件のご相談など、ホームページには掲載が間に合わず載せきれていない情報もございます。
気になることが御座いましたらお気軽にメールにてお問い合わせください。
03-5778-2611
株式会社イデアルコンサルティング
お問い合わせNO:RHS-IDEAL1620

物件基本情報

所在地 東京都世田谷区上用賀4 
交通 東急田園都市線 「用賀駅」 徒歩14分
種別 / 構造 一戸建て / - 主要採光面 所在階 / 階数 - / 2階
築年月 2010年2月  間取り 3LDK( LDK23畳(2階)/洋室5.2畳(2階)/洋室8.5畳(1階)/洋室5.9畳(1階) ) 専有面積 112.66m2

物件詳細情報

損保 更新料 - 鍵交換代 -
駐車場 近隣駐車場   契約期間
借家区分
3年 定期借家
現況 入居可能日 2026年4月7日 取引態様 媒介
保証人代行会社 【保証会社加入必須】
初回 賃料総額100% + 月額賃料総額2%(最低1,000円)
仲介手数料 バイク置き場
その他費用
  • ■一時金:リロサポ加入料(月額)1,500円
    ■駐車場登録料:11,000円(利用時のみ)
    ■除菌施工料:19,800円(契約時のみ)
    ■損害保険:25,500円(2年)

設備詳細情報

キッチン
  • システムキッチン
  • 3口以上コンロ
  • 食器洗乾燥機
  • ガスコンロ設置済
バス・トイレ
  • 給湯
  • バストイレ別
  • シャワー
  • 追焚機能浴室
  • 浴室乾燥機
  • 洗面所独立
  • シャワー付洗面台
  • トイレ2ヶ所
  • 室内洗濯機置き場
住空間
  • 吹抜け
  • テラス
  • バルコニー
  • 南向き
  • フローリング
  • ロフト
  • 玄関ポーチ
  • エアコン
設備・サービス
  • クロゼット
  • 床下収納
  • 屋根裏収納
  • TVインターホン
  • 駐車場1台無料
特 徴
  • 陽当り良好
  • 通風良好
条件・その他 水道:公営 / 排水:下水 / 事務所:不可 / 楽器相談:可 / ペット:不可 / 子供:可 / ルームシェア:不可
コメント
備 考 ■ 退去時は、借主負担にてハウスクリーニング実施.
■ 6ヶ月未満で解約した場合、賃料の0.5ヶ月分を申受けます。
■ 入居条件
 -  可 :子供、二人入居、法人
 - 不 可:ペット、ルームシェア、飲食店、学生専用、事務所
 - 相 談:外国人、楽器使用、高齢者、単身
 - その他:性別不問

学区情報

小学校区 世田谷区立用賀小学校
(東京都世田谷区)
中学校区 用賀中学校
(東京都世田谷区)
情報更新日:2026年01月15日 次回更新予定日:2026年01月29日
※各種情報と差異がある場合は現況優先となります
※物件情報の学区情報について
当サイト物件情報に記載されております通学区域(学区)情報は、国土数値情報ダウンロードサービスが提供する小学校区データ【2016年度】及び中学校区データ【2016年度】を元に加工したものですので、記載情報が現在の学区域と異なる場合がございます。国土数値情報ダウンロードサービスのWEBサイト上で記述通り、データは必ずしも正確とは言えません。また、通学区域(学区)は毎年見直しの対象となりますので、そちらを踏まえ学区情報は参考としてご活用下さい。

近隣スポット情報

  • 【買う】コンビニエンスストア
    ファミリーマート 世田谷教育会館前店(1748m)
  • 【買う】コンビニエンスストア
    ファミリーマート 世田谷教育会館前店(1748m)
  • 【買う】コンビニエンスストア
    ファミリーマート 世田谷教育会館前店(1748m)
  • 【買う】コンビニエンスストア
    ローソン 世田谷瀬田五丁目店(1702m)
03-5778-2611
株式会社イデアルコンサルティング
お問い合わせNO:RHS-IDEAL1620

この物件に似た物件をチェック!


閲覧した物件の履歴

閲覧した物件の一覧を見る

最近検索した条件一覧



気になったら今すぐ!カンタンお問合せ



お問合せ内容必須
【備考欄】
希望条件・来店希望日・その他質問がございましたらご記入ください。
お客様情報
お名前必須
連絡先必須 メールアドレス
電話番号



※ご入力いただいたお客さまの個人情報は、「個人情報の取扱いについて」に基づき適正に取り扱います。必ずお読みになり、同意の上お問い合わせください。




※ご記入いただいたメールアドレス宛てに、お問合せ内容の確認メールをお送りいたします。
※Yahoo!メールなどのフリーメールをご利用の場合、迷惑メールフォルダに入る場合があります。
 迷惑メールのフォルダ・設定等をご確認下さい。
 


▲ページのTOPへ戻る


お問合せはこちら

株式会社イデアルコンサルティング 03-5778-2611

戸建て賃貸情報

不動産コラム

イデアルコンサルティング
( IDEAL Consulting Co.,Ltd )
〒150-0002
東京都渋谷区渋谷2-11-8
大菅ビルディング8階
TEL:03-5778-2611
FAX:03-5778-2614

詳しく見る