世田谷区弦巻戸建 3LDK 世田谷駅/徒歩8分 駐車場付き 世田谷の3LDK賃貸一戸建て!|カリコダテ(株式会社イデアルコンサルティング)

03-5778-2611

営業時間:9:00〜18:00
定休日:土・日・祝

東京都内の賃貸一戸建てはカリコダテ|TOP
賃貸戸建て検索
世田谷区の賃貸戸建て一覧
世田谷区弦巻戸建 3LDK 世田谷駅/徒歩8分 駐車場付き 世田谷の3LDK賃貸一戸建て

NEW 世田谷区弦巻戸建 3LDK 世田谷駅/徒歩8分 駐車場付き 世田谷の3LDK賃貸一戸建て 

  • 35万円 / 管理費: 無 / 共益費: -
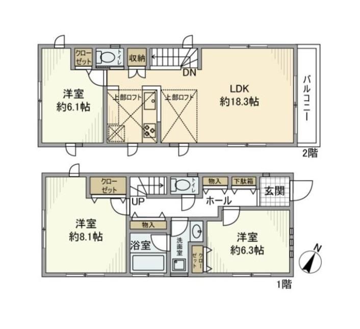
  • 間取り: 3LDK / 専有面積: 89.14m2
  • 敷金: 70万円 / 礼金: 35万円 / 保証金: - / 敷引・償却: --
【建物外観】  【間取】 
【建物外観】 
【間取】 
  • 【建物外観】 
  • 【間取】 

【スタッフからのイチオシポイント】世田谷区弦巻戸建 3LDK 世田谷駅/徒歩8分 駐車場付き

東京都世田谷区弦巻1【東急世田谷線 世田谷駅徒歩8分】にある3LDK賃貸一戸建てです。
2015年1月築の3LDKの戸建て賃貸です。
物件の広さは89.14m2で人気の3LDKです。
※お部屋のもっと詳しい内容や入居時期、諸条件のご相談など、ホームページには掲載が間に合わず載せきれていない情報もございます。
気になることが御座いましたらお気軽にメールにてお問い合わせください。
03-5778-2611
株式会社イデアルコンサルティング
お問い合わせNO:RHS-IDEAL1586

物件基本情報

所在地 東京都世田谷区弦巻1 
交通 東急世田谷線 「世田谷駅」 徒歩8分
東急田園都市線 「駒沢大学駅」 徒歩12分
東急世田谷線 「松陰神社前駅」 徒歩9分
種別 / 構造 一戸建て / 木造 主要採光面 北東 所在階 / 階数 - / 2階
築年月 2015年1月  間取り 3LDK( LDK18.3畳(2階)/洋室8.1畳(1階)/洋室6.3畳(1階)/洋室6.1畳(2階) ) 専有面積 89.14m2

物件詳細情報

損保 更新料 - 鍵交換代 -
駐車場 近隣駐車場   契約期間
借家区分
2年 定期借家
現況 入居可能日 2026年4月7日 取引態様 媒介
保証人代行会社 【保証会社加入必須】
初回 賃料総額100% + 月額賃料総額2%(最低1,000円)
仲介手数料 バイク置き場
その他費用
  • 【一時金】
    ■ リロサポ加入料(月額):1,500円
    ■ 駐車場登録料 1台(利用時のみ): 11,000円
    ■ 除菌施工料(契約時のみ): 19,800円
    ■ 損害保険 要25,500円(2年)
    ■ 退去時は、借主負担にてハウスクリーニング実施
    ■ 6ヶ月未満で解約した場合、賃料の0.5ヶ月分を申受けます。

設備詳細情報

キッチン
  • システムキッチン
  • 3口以上コンロ
  • 食器洗乾燥機
バス・トイレ
  • 給湯
  • バストイレ別
  • 追焚機能浴室
  • 浴室乾燥機
  • 洗面所独立
  • シャワー付洗面台
  • トイレ2ヶ所
  • 室内洗濯機置き場
住空間
  • バルコニー
  • フローリング
  • エアコン
設備・サービス
  • TVインターホン
  • 駐車場1台無料
特 徴
  • 2沿線利用可
  • 3駅以上利用可
  • 駅徒歩10分以内
条件・その他 ガス:都市 / 水道:公営 / 排水:下水
コメント
備 考 ■ 入居条件
 - 可  :子供、法人
 - 不可 :ペット、ルームシェア、学生専用、飲食店、事務所
 - 相談 :楽器使用、単身、二人入居、高齢者、外国人
 - その他:性別不問

学区情報

小学校区 世田谷区立弦巻小学校
(東京都世田谷区)
中学校区 弦巻中学校
(東京都世田谷区)
情報更新日:2025年11月27日 次回更新予定日:2025年12月11日
※各種情報と差異がある場合は現況優先となります
※物件情報の学区情報について
当サイト物件情報に記載されております通学区域(学区)情報は、国土数値情報ダウンロードサービスが提供する小学校区データ【2016年度】及び中学校区データ【2016年度】を元に加工したものですので、記載情報が現在の学区域と異なる場合がございます。国土数値情報ダウンロードサービスのWEBサイト上で記述通り、データは必ずしも正確とは言えません。また、通学区域(学区)は毎年見直しの対象となりますので、そちらを踏まえ学区情報は参考としてご活用下さい。

近隣スポット情報

  • 【買う】コンビニエンスストア
    ファミリーマート 世田谷教育会館前店(773m)
  • 【買う】コンビニエンスストア
    ファミリーマート 世田谷教育会館前店(773m)
  • 【買う】コンビニエンスストア
    ファミリーマート 世田谷教育会館前店(773m)
  • 【買う】インテリア
    (有)プリズム(1422m)
03-5778-2611
株式会社イデアルコンサルティング
お問い合わせNO:RHS-IDEAL1586

この物件に似た物件をチェック!


閲覧した物件の履歴

閲覧した物件の一覧を見る

最近検索した条件一覧



気になったら今すぐ!カンタンお問合せ



お問合せ内容必須
【備考欄】
希望条件・来店希望日・その他質問がございましたらご記入ください。
お客様情報
お名前必須
連絡先必須 メールアドレス
電話番号



※ご入力いただいたお客さまの個人情報は、「個人情報の取扱いについて」に基づき適正に取り扱います。必ずお読みになり、同意の上お問い合わせください。




※ご記入いただいたメールアドレス宛てに、お問合せ内容の確認メールをお送りいたします。
※Yahoo!メールなどのフリーメールをご利用の場合、迷惑メールフォルダに入る場合があります。
 迷惑メールのフォルダ・設定等をご確認下さい。
 


▲ページのTOPへ戻る


お問合せはこちら

株式会社イデアルコンサルティング 03-5778-2611

戸建て賃貸情報

不動産コラム

イデアルコンサルティング
( IDEAL Consulting Co.,Ltd )
〒150-0002
東京都渋谷区渋谷2-11-8
大菅ビルディング8階
TEL:03-5778-2611
FAX:03-5778-2614

詳しく見る