-
≪戸建賃貸更新情報≫世田谷区上用賀4丁目
本日、新規物件を10件更新しました!戸建賃貸物件80件以上掲載中。こちらのサイトでは、新築・ペット可・駐車場付き物件など、皆様のニーズに合った良質な物件をご紹介しております。本日は、緑豊かな住環境で人気の世田谷区上用賀4丁目から、ゆったりとした時間を過ごせる戸建賃貸をご紹介します。
東急田園都市線「用賀」駅から徒歩14分の落ち着いたエリアに位置し、敷地内には嬉しい駐車場1台分がしっかりとついています。
_9.png)
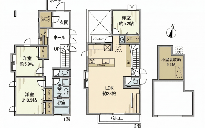
南向きで陽当たり良好な2階リビング
家族全員が集まるLDKは2階に配置されており、約23帖もの圧倒的な広さを誇ります。
南向きで陽当たりや通風もよく、外からの視線を気にせずリラックスできる開放感あふれる空間が広がっています。大き目の家具やインテリアも余裕をもってレイアウト可能です。
_9.png)
食洗器完備!家事をサポートするシステムキッチン
キッチンは、お料理好きの方にうれしい3口以上のガスコンロを備えたシステムキッチンを採用しています。
後片付けの手間を大幅に省いてくれる食器洗浄乾燥機も完備されているため、毎日の家事負担を軽減し、ご家族と過ごす時間をより多く作ることができます。
_5.png)
150平米超!全室8帖以上のゆったりとした4LDK
1階には主寝室にピッタリな約8.5帖の洋室と、約5.9帖の洋室を配置。2階にもLDKに隣接して約5.2帖の洋室があり、それぞれプライベートな空間をしっかり確保できます。
さらに、約5.2帖の広々とした小屋裏収納を備えているため、季節ごとの家電や衣類、アウトドア用品などをすっきりと片付けることができます。充実の水回りと楽器相談可能な柔軟性
浴室には、追い焚き機能や雨の日のお洗濯に重宝する浴室乾燥機・浴室暖房を完備。独立洗面台は使い勝手の良いシャワー付きで、トイレは1階と2階の2か所にあるため忙しい朝もスムーズです。
また、こちらの物件は「楽器使用相談」が可能となっており、お子様の習い事など音のある暮らしを楽しみたい方にもおすすめできる柔軟な入居条件が魅力です。

この物件の詳細情報はこちらから物件概要所在地東京都世田谷区上用賀4丁目 交通田園都市線「用賀」駅/徒歩14分 間取り3LDK専有面積112.66㎡賃料350,000円管理費0円 礼金 / 敷金1ヶ月 / 2ヶ月築年月2010年2月契約形態定期借家契約3年 駐車場敷地内駐車場1台 入居条件楽器使用相談、子供可、高齢者相談、外国人相談、法人可、ペット不可、ルームシェア不可 主な設備小屋裏収納、食器洗浄乾燥機、浴室乾燥機、浴室暖房、追い焚き機能、3口以上ガスコンロ、システムキッチン、TVインターホン、シャワー付き洗面台、トイレ2か所
ページ作成日 2026-04-10





