-
≪戸建賃貸更新情報≫世田谷区上用賀3丁目
本日、新規物件を11件更新しました!戸建賃貸物件80件以上掲載中。こちらのサイトでは、新築・ペット可・駐車場付き物件など、皆様のニーズに合った良質な物件をご紹介しております。本日は、世田谷区上用賀3丁目から、152.99㎡という圧倒的な広さを誇る物件をご紹介します。
東急田園都市線「用賀」駅から徒歩9分、「桜新町」駅からも徒歩17分とアクセス良好な立地です。専用庭や広々としたバルコニーなど、戸建てならではの魅力が詰まった物件です。
_7.png)
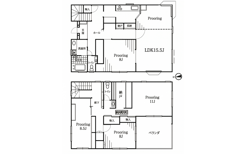
専用庭付!陽当たり良好な15.5帖のLDK
1階にあるLDKは約15.5帖の広さがあり、南向きで陽当たり良好です。
リビングからは庭に出ることができ、開放的な空間が広がっています。さらに、1階の窓には防犯ガラスが採用されており、セキュリティ面も安心してお過ごしいただけます。
_8.png)
3口以上コンロ完備の独立型キッチン
キッチンは、お料理の幅が広がる3口以上のガスコンロを完備しています。
独立したキッチンスペースとなっているため、お料理に集中しやすく、急な来客時でもリビングから生活感が見えにくいのがうれしいポイントです。
_9.png)
150平米超!全室8帖以上のゆったりとした4LDK
2階には洋室が4部屋あり、どの部屋も十分な広さが確保されています。
ウォークインクローゼットやグルニエ(小屋裏収納)もついており、収納力は抜群です。また、2階には広さ18㎡の広々としたバルコニーも完備されています。
_10.png)
無料駐車場付&大型犬・猫の多頭飼いも相談可能
敷地内には嬉しい無料の駐車場が1台分ついています。さらに、こちらの物件はペットのご相談が可能で、犬や猫だけでなく大型犬の飼育も相談できます。(ペット飼育時は敷金2か月・償却2か月)外国籍の方のご入居も相談可能です。

この物件の詳細情報はこちらから物件概要所在地東京都世田谷区上用賀3丁目 交通田園都市線「用賀」駅/徒歩9分
田園都市線「桜新町」駅/徒歩17分間取り4SLDK専有面積152.99㎡賃料370,000円管理費0円 礼金 / 敷金1ヶ月 / 1ヶ月(ペット飼育の場合:敷金2か月)築年月1987年2月契約形態定期借家契約2年 駐車場敷地内駐車場無料1台 入居条件ペット相談(犬・猫・大型犬可)、外国籍相談可、子供可、二人入居可 主な設備専用庭、バルコニー(18㎡)、グルニエ、一階防犯ガラス、WIC、追い焚き機能、トイレ2か所、ガスコンロ3口以上
ページ作成日 2026-03-27





