-
≪新築戸建賃貸更新情報≫中野区江原町3丁目
本日、新規物件を5件更新しました!戸建賃貸物件80件以上掲載中。こちらのサイトでは、新築・ペット可・駐車場付き物件など、皆様のニーズに合った良質な物件をご紹介しております。今回は、中野区江原町3丁目に完成したばかりの新築戸建てをご紹介します!
大江戸線「新江古田」駅から徒歩4分という好立地に加え、西武池袋線「江古田」駅も徒歩9分で利用可能。
通勤・通学に大変便利なロケーションです。
_12.png)
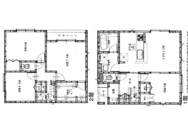
全室エアコン付き!収納豊富な4LDK
間取りはファミリーに最適な4LDKです。1階にはLDKと洋室、2階には3つの洋室を配置し、プライベート空間もしっかり確保。
特に2階の7.5帖の主寝室にはウォークインクローゼットが付いており、収納力も抜群です。
全室に照明とエアコン(計5基)が設置されているため、入居初日から快適にお過ごしいただけます。
_13.png)
EV充電設備も完備した最新の設備仕様
新築ならではの最新設備が充実しています。敷地内の車庫スペース(小型車用)にはEV充電設備を完備しており、電気自動車をお持ちの方も安心。
その他、追い焚き機能付きバス、浴室乾燥機、システムキッチン、床下収納など、日々の生活を豊かにする機能が満載です。快適性を高めるペアガラスと安心の契約形態窓には断熱効果の高いペアガラスを採用しており、外気の影響を受けにくく、冬場の結露の発生も抑えられます。
また、本物件は定期借家契約ですが『再契約可能』な条件となっています!
気に入った家に長く住みたいというご希望もしっかり叶えられる安心の契約形態です。閑静な住宅街の角地で叶える安心の暮らし
物件は閑静な住宅街の東北角地に位置しており、開放感があります。近隣にはスーパーなどもあり、日々のお買い物にも困りません。
また、玄関Wロック、モニター付きインターホン、防犯シャッターなどセキュリティ面にも配慮されており、安心して新生活をスタートできます。

この物件の詳細情報はこちらから物件概要所在地東京都中野区江原町3丁目交通都営大江戸線「新江古田」駅徒歩4分/西武池袋線「江古田」駅徒歩9分 間取り4LDK専有面積89.10㎡賃料320,000円管理費0円礼金 / 敷金1ヶ月 / 2ヶ月入居可能日2025年10月 契約形態定期借家契約(再契約可) 駐車場有り(小型車スペース)入居条件ペット不可、楽器不可主な設備EV充電設備、エアコン5基、ペアガラス、ウォークインクローゼット、システムキッチン、浴室乾燥機、追い焚き機能、防犯シャッター
ページ作成日 2025-11-20





