-
≪戸建賃貸更新情報≫練馬区南大泉1丁目
本日、新規物件を6件更新しました!戸建賃貸物件80件以上掲載中。こちらのサイトでは、新築・ペット可・駐車場付き物件など、皆様のニーズに合った良質な物件をご紹介しております。今回は、練馬区南大泉1丁目に位置する、とても希少な設備を備えた物件をご紹介します!
賃貸物件では珍しい「ホームエレベーター」と「屋根・シャッター付き駐車場2台分」を完備。
SOHOや事務所としての利用も可能な、多目的にご活用いただける物件です。
_11.png)
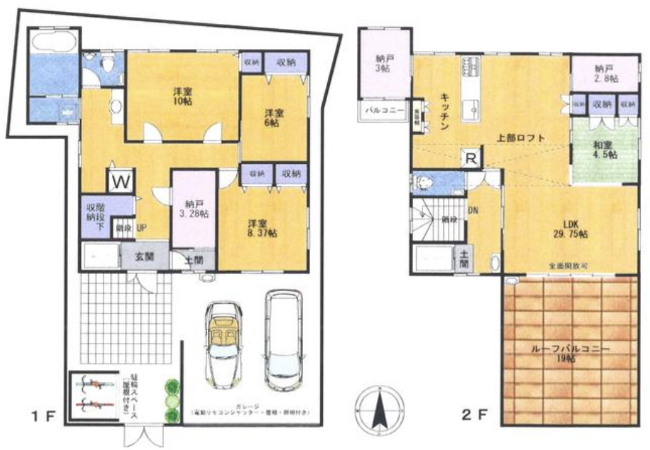
圧巻の29.7帖!床暖房付きの広々LDK住まいの中心は約29.7帖という圧倒的な広さを誇るLDKです。
足元から部屋全体を暖める床暖房も完備しており、寒い季節も快適に過ごせます。
キッチンには食器洗浄乾燥機付きのシステムキッチンを採用。ご家族との団らんも、お客様を招いてのパーティも、ゆったりと楽しめる空間です。
_7.png)
賃貸では希少なホームエレベーター完備
この物件最大の特徴は、ホームエレベーターが設置されている点です。
重い荷物の移動や、ご高齢の方の上下階の移動もスムーズに行えます。事務所利用の際の機材搬入や、住宅型介護施設としての利用にも最適です。
_5.png)
事務所・SOHO・介護施設利用も相談可能
通常の住居としてはもちろん、事務所やSOHOとしての利用もご相談いただけます。
さらに「住宅型介護老人施設」としての利用にも最適とされており、その広さと設備(エレベーター、トイレ2箇所など)は多様なニーズに応えます。
_2.png)
充実の設備と収納力
屋根とシャッターが付いた駐車場が2台分確保されており、大切なお車を雨風から守ります。
このほか、開放的な広いルーフバルコニーや、収納に便利な大型ロフト(グルニエ)、忙しい朝も安心のトイレ2箇所など、生活の質を高める設備が満載です。
.png)
この物件の詳細情報はこちらから物件概要所在地東京都練馬区南大泉1丁目 交通西武池袋線「武蔵関」駅 徒歩19分 間取り4LDK専有面積173.24㎡賃料350,000円管理費なし(賃料に含む) 礼金 / 敷金1ヶ月 / 2ヶ月築年月2005年1月契約形態定期借家契約2年 駐車場有り(2台分・30,000円/月)※屋根・シャッター付
駐輪場無料入居条件事務所・SOHO利用可、ペット不可主な設備ホームエレベーター、駐車場2台分、大型ロフト(グルニエ)、ルーフバルコニー、床暖房、食器洗浄乾燥機、トイレ2箇所
ページ作成日 2025-11-13





